
ЛокацияLisbon, Portugal
Год2023
Площадь19.177 sqm
СтатусЗавершен
LocationLisbon, Portugal
SectorResidential
Year2023
Area19.177 sqm
ClientRound Hill - Capital
StageBuilt
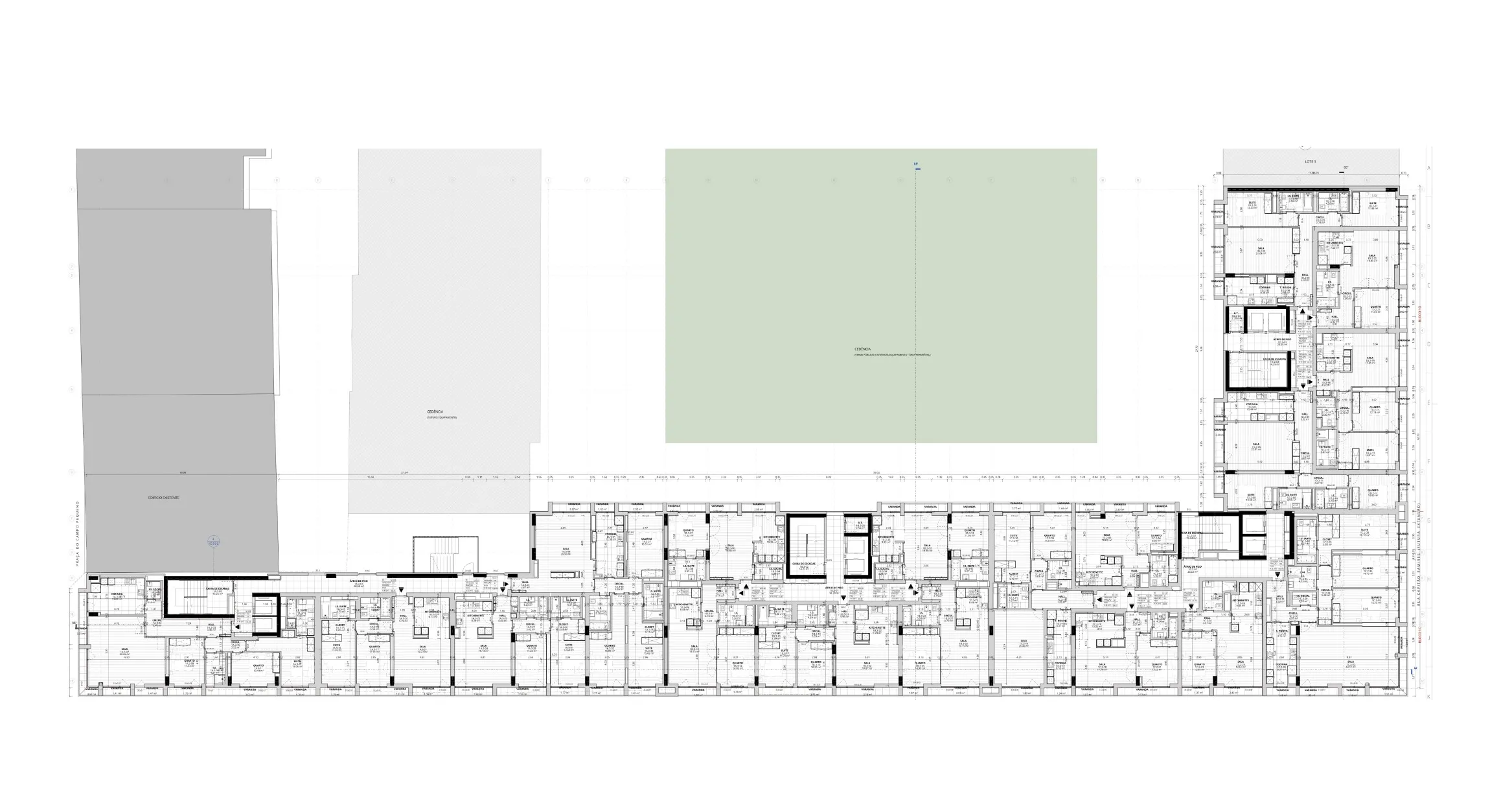
Соседствуя с ареной для быков Campo Pequeno, Lumino Residence представляет собой дизайн, который реконструирует квартал, открываясь на зеленую центральную площадь, способствуя плавному переходу между городским шумом и спокойствием сада. Применяя минималистичный язык, явно современный, дизайн этого ядра стремится интегрироваться в городскую среду через переосмысление его квартального характера. Внутри объем включает в себя в общей сложности 97 квартир.
Проект подготовили
Этот проект является междисциплинарной работой в области архитектуры и дизайна. Опубликовано 15 марта 2026 г..
Галерея проекта









Другие проекты Автора
Посмотрите последние работы Saraiva+Associados

6346
Arcoverde

5517
ALLO – Alcântara Lisbon Offices

3684
Judiciary Police Headquarters

3485
Beatriz Ângelo Hospital

4467
Dafundo

3753
Bayline

4354
Casal Ribeiro

916
Infinity Tower

1039
Valrio

927
The Editory Riverside Santa Apolónia Hotel

771
Park International School

813
