
ЛокацияLisbon, Portugal
Год2017
Площадь2.156 sqm
СтатусЗавершен
LocationLisbon, Portugal
SectorHospitality
Year2017
Area2.156 sqm
ClientGolden Flamingo
StageBuilt
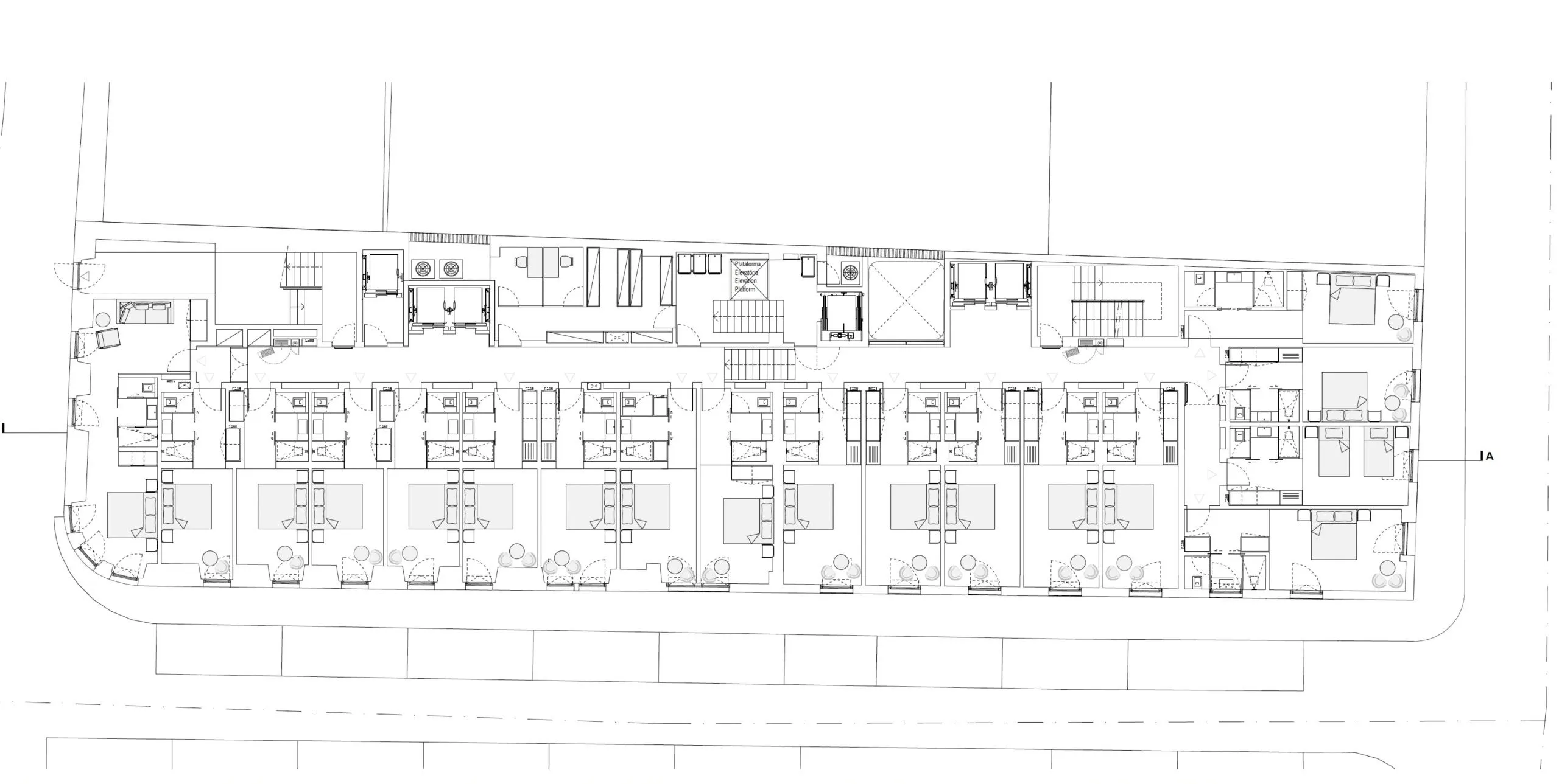
Hilton построил свой первый отель Curio Collection в Португалии с глобальным подходом, который включал два отдельных, но взаимосвязанных вмешательства. С одной стороны, это реновация, с внутренним переустройством существующего здания; с другой стороны, строительство нового здания в городских пространствах. Два здания вместе образовали архитектурный комплекс, который утвердился как единое целое, функционально и формально объединенное через диалог между двумя.
Проект подготовили
Этот проект является междисциплинарной работой в области архитектуры и дизайна. Опубликовано 15 марта 2026 г..
Галерея проекта


















Другие проекты Автора
Посмотрите последние работы Saraiva+Associados

3795
Arcoverde

4809
ALLO – Alcântara Lisbon Offices

2501
Judiciary Police Headquarters

2408
Beatriz Ângelo Hospital

3062
Dafundo

2631
Bayline

1884
Casal Ribeiro

916
Infinity Tower

1039
Valrio

927
The Editory Riverside Santa Apolónia Hotel

771
Park International School

840
