
Инсайт
Школа Будущего: Почему Казахстану Нужен Новый Дизайн Образовательных Пространств
Современная школа — это уже не просто здание с коридорами и классами, а инструмент для обучения. На фоне растущего дефицита мест и активного строительства, критически важно пересмотреть подходы к дизайну образовательных учреждений, отказавшись от устаревших типовых проектов. Мировые тенденции показывают, что архитектура напрямую стимулирует интеллектуальные способности, социальное взаимодействие и эмоциональное благополучие учеников.
Современная образовательная парадигма требует от ученика развития критического мышления, креативности и навыков коллаборации. Однако архитектурный фонд большинства школ в стране не соответствует этим высоким требованиям.Типовые проектысоветского образца и многие постсоветские здания спроектированы по принципумонофункциональныхячеек — изолированных классов. Это создает фундаментальный конфликт между целью обучения и его средой.
Конфликт: Архитектура, которая не учит
Основные ошибки, допускаемые генподрядчиками и проектировщиками, связаны с экономией и сохранением устаревших стандартов.
В первую очередь, это проявляется в негибкости пространства, которое не способно адаптироваться под различные форматы обучения. Во-вторых, наблюдается изоляция школ от городской жизни. Их ограды и периметры создают барьер, вместо того чтобы интегрировать школу в ткань микрорайона как многофункциональный общественный центр. Наконец, архитектура демонстрирует скудность рекреационных зон, которые сводятся к узким, нестимулирующим коридорам. Это прямо противоречит научным данным, которые подтверждают, что эстетическое качество среды существенно влияет на эмоциональную оценку пространства и длительность комфортного пребывания в нем.
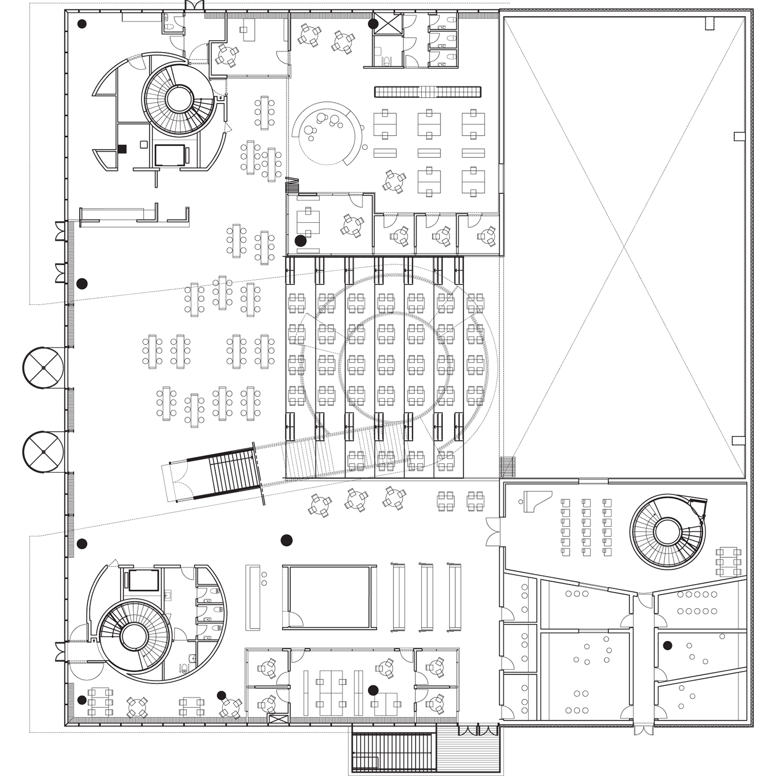
“Функциональная Монотонность” — это самая глубокая и часто упускаемая проблема в архитектуре школ, поскольку она напрямую связана с неэффективностью обучения в современных условиях. Доминирование жесткой “коридорной” системы, которая не предусматривает гибкие, многофункциональные пространства для групповой работы, проектной деятельности или неформальной коллаборации. Классы не трансформируются, что мешает внедрению современных педагогических методик.
Примеры Архитектуры, которая учит
На изображениях ниже представлена Ørestad Gymnasium (Гимназия Орестад) от архбюро «3XN«— Копенгаген, Дания. Проект завершен в 2007 году (дополнительные проектные работы в 2017 году). Концепция: Школа-коворкинг или «Школа без стен». Здание представляет собой одно огромное, открытое, четырехэтажное пространство, где нет традиционных классов. Учебные зоны базируются вокруг главного атриума и гигантской спиральной лестницы, которая является центральным местом встреч, общения и обучения. Ученики проводят около 50% времени в открытых, гибких зонах, что стимулирует совместную работу и проектное мышление. Архитектура активно формирует поведение. Отсутствие стен и коридоров повышает креативность и позволяет максимально эффективно использовать каждый квадратный метр.




























Другой пример Школа Khan Lab, открывшаяся в 2017 году, спроектированная и построенная архитектурным бюро Kurani , сочетает в себе традиционное обучение в классе с проектами, реализуемыми учениками. Этот подход радикально отличается от традиционного школьного образования и может проложить путь к школам будущего. Школа Khan Lab – это настоящая лаборатория для обучения. Здесь нет кабинетов истории или математики. Вместо этого школа построена вокруг различных способов обучения, поэтому при обновлении учебной программы преподавателям не нужно создавать ничего нового. Гибкая образовательная среда может адаптироваться к изменениям.






Гибкий подход к обучению подразумевает предоставление детям возможности побыть наедине с собой. Сотрудничество важно, но в окружении сверстников многие ученики могут со временем почувствовать себя перегруженными.


Некоторые из гибких учебных сред включают в себя личные уголки и уголки для чтения, где можно спокойно учиться или общаться. Кроме того, есть лаборатория для проектирования и изготовления, лаборатория идей для мозгового штурма и чат-лаборатория для обсуждений и решения проблем.
В отличие от обычных школ или классов , здесь нет скрипучих стульев, отвлекающих внимание украшений или ненужной техники, которой ученики не пользуются. Каждое решение было осознанным и направлено на создание условий для определённых видов деятельности, а не на следование традициям.



Недавнее исследование, проведённое с участием 36 000 учащихся, показало, что «персонализированное обучение» повысило результаты стандартизированных тестов по математике и чтению по сравнению с традиционным образованием. В рамках персонализированного обучения учителя берут на себя скорее коучинговую роль, а ученики сами руководят процессом обучения, как правило, с помощью технологий.

Несмотря на то, что школа Khan Lab рассчитана всего на 100 детей, Курани отметил, что эту модель можно реализовать в гораздо более широких масштабах.
Если бы школа попросила нас спроектировать кампус на 1000+ учеников, мы бы сначала попытались понять, что делает эту школу уникальной. После этого мы продумываем, как адаптировать архитектуру под них, учитывая их видение, культуру и потребности.
Дэниш Курани, основатель и главный дизайнерKurani,изданию Insider

Архитектура как «Третий Учитель»: Гибкие Пространства
Новое поколение школ проектируется по принципу трансформации и многофункциональности, поскольку школьное здание обязано стать «третьим учителем» — средой, которая сама обучает и вдохновляет. Этот подход подтверждается исследованиями: доказано, что архитектура образовательного пространства косвенно, но ощутимо влияет на развитие творческих способностей и учебный процесс в целом.
Для этого вместо жесткого деления классов должна использоваться концепция “гибкого ядра”. Это означает отказ от несущих внутренних стен в пользу раздвижных перегородок, мобильной мебели и модульных систем, что позволяет мгновенно трансформировать классы в большие лекционные залы или хакатоновские центры.
Кроме того, обучение происходит не только за партой, поэтому крайне важно проектировать «точки пересечения». Открытые атриумы, широкие лестницы-амфитеатры, медиатеки и “игровые” лаборатории активно стимулируют неформальную коллаборацию и проектную работу. Наконец, проекты должны обеспечивать сквозную связь между различными дисциплинами. Лаборатории STEM следует располагать в непосредственной близости от творческих студий, поощряя междисциплинарность.














Интеграция в Город: Школа как Общественный Хаб
В плотной городской застройке школьные здания не должны простаивать после окончания уроков. Инвестиции в образовательную инфраструктуру должны быть многократно окупаемы за счет использования школы как общественного центра для всего микрорайона.
Для реализации этого требуется принцип открытости. Спортивные залы, бассейны, библиотеки и мастерские должны быть спроектированы с отдельными входами и полностью изолированными коммуникациями. Эта изоляция позволяет жителям района использовать эти пространства для секций и кружков в нерабочее время. Кроме того, важен фактор сотрудничества с ВУЗами и бизнесом. Пространства, такие как высокотехнологичные лаборатории, могут быть спроектированы для совместного использования с местными университетами или технологическими компаниями. Такой подход не только повышает эффективность использования дорогостоящего оборудования, но и интегрирует школьников в реальную профессиональную среду.













Проектирование Школ Внутри ЖК — Плохое Решение
Мировой опыт, особенно в плотно застроенных мегаполисах Азии и Ближнего Востока, показывает, что проектирование школ как части жилого комплекса (ЖК) или встраивание их в жилые дома является неоптимальным решением с точки зрения педагогики и безопасности.
Встроенные или интегрированные школы в жилые кварталы критически ограничены в площади двора и спортивных зон. Это препятствует внедрению обучения на свежем воздухе, ограничивает физическую активность и не позволяет создать полноценные спортивные сооружения (например, полноразмерные футбольные поля или беговые дорожки). Такая школа неизбежно создает конфликт потоков. В часы пик (привоз/увоз детей) происходит пересечение пешеходного трафика учеников с автомобильным и пешеходным трафиком жильцов, что создает угрозу безопасности и транспортный коллапс во дворах ЖК.
При этом школа теряет свою архитектурную идентичность и публичную функцию, становясь просто частью жилого массива. Общественное здание, которое служит якорем для всего района, должно иметь свой собственный, внушительный масштаб и визуальную автономию, чего невозможно достичь при “встраивании”. Встроенное здание не имеет возможности для расширения или адаптации. Если школе потребуется новая лаборатория или спортивный зал через 10 лет, это будет невозможно без сноса или кардинальной перестройки соседних жилых секций.
Для создания здоровой и эффективной образовательной среды необходимо отказаться от “встроенных” и типовых решений в пользу автономных, архитектурно выразительных зданий с достаточными прилегающими территориями, спроектированных по принципам гибкости и биофильного дизайна. Школа должна быть публичным, а не частным пространством, способным служить катализатором развития всего района.
Если пространство ограничено
Используя вертикаль, используя город как продолжение школы и реализуя модульные и гибкие решения, можно максимально эффективно использовать ограниченное пространство и создать функциональное и красивое образовательное учреждение благодаря продуманному проектированию городской школы.
Городские школы сталкиваются с уникальными архитектурными проблемами. Вот несколько эффективных решений от Джеймса Крюгере, AIA, NCARB, директора по дизайну HMC Architects.
- Используйте само здание в качестве барьера.Располагая периметр здания ближе к границам участка, архитекторы устраняют необходимость в высоких стенах или ограждениях вокруг школы. Чтобы компенсировать отсутствие фасада, в центре участка часто проектируют внутренний двор или площадку. Эти прекрасно благоустроенные зоны общего пользования позволяют ученикам и учителям чувствовать себя в безопасности, а также обеспечивают доступ к природе и возможность любоваться ею.
- Представительство района.Проект школы — это наиболее явное выражение инвестиций сообщества в образование. При проектировании школы необходимо внимательно изучить местный контекст, проект должен отражать особенности районов, которые обслуживает школа. Для достижения этой цели стоит учесть несколько факторов:
- Масштаб.Учитывать размер школы, её высоту и расположение основных элементов здания относительно окружающих построек. Также учитывать тени и линии тени, а также другие архитектурные элементы, которые помогают уменьшить масштаб большого здания, чтобы он лучше вписывался в местный, часто жилой, контекст.
- Цвет.Цвет играет важную роль в дизайне любого сооружения. Он может стать ярким акцентом в районе, привлечь внимание к главному входу, облегчая навигацию, и даже помочь визуально уменьшить масштаб большого здания.





При тщательном рассмотрении задачи проектирования городских школ могут быть решены с помощью весьма креативных решений. Расположение городской школы позволяет широко представить её программы и мероприятия широкой общественности, превращая её в центр внимания и безопасное место для встреч.
Джеймс Крюгер, AIA, NCARB, директора по дизайнуHMC Architects
- Превращайте проблемы в возможности
Каждый проект имеет свой уникальный набор параметров и задач, важно тестировать новые решения, основываясь на успехе предыдущих проектов. Учитесь на своем опыте, чтобы создавать школы, идеально соответствующие местоположению, местному сообществу, ученикам, учителям и родителям.








Климатический Ответ: Экология, Комфорт и Снижение Стресса
Учитывая суровый континентальный климат в ряде городов Казахстана, архитектура должна активно работать на поддержание психологического и физического здоровья учеников в течение всего года. Научные исследования однозначно показывают: дизайн пространства может регулировать уровень стресса. Ключевые факторы, такие как уровень шума, возможность уединения и наличие личного пространства, прямо влияют на когнитивные функции.



Необходимо делать акцент на световом дизайне, максимально используя естественный свет и проектируя рекреационные зоны у больших панорамных окон. Это критически важно для психологического комфорта и борьбы с сезонной депрессией в условиях короткого светового дня зимой. Помимо этого, для противодействия холодному климату требуется создание защищенных внутренних дворов или зимних атриумов, которые имитируют природную среду и могут включать небольшие теплицы. Это позволяет ученикам получать достаточно света и “зелени” даже в самые сильные морозы, обеспечивая необходимые условия для психологической разгрузки и движения, тем самым снижая стресс и активизируя учебный процесс.



Заключение
Школы должны перестать быть просто “местом для уроков” и стать катализатором городского развития и инноваций. Переход к гибкой, многофункциональной и открытой архитектуре — это не просто архитектурный тренд, а стратегическая инвестиция в человеческий капитал и будущее страны. Новые проекты должны быть разработаны с учетом локальных климатических особенностей и целей интеграции с городским сообществом, чтобы школа, как доказано учеными, действительно стала средой, которая поддерживает, развивает и вдохновляет.
Метки

Комментарии (0)