
Инсайт
Студия Hibino Sekkei + Youji – специалисты детского садо-строительства
Японские детские сады хорошо известны своим минималистичным дизайном и творческими игровыми пространствами. Дизайнеры команды Hibino Sekkei + Youji no Shiro создали множество уникальных пространств для детей и мы предлагаем познакомиться с их реализованными проектами.
Основные услуги «Youji no Shiro» (Ёдзи но Широ) – это проектирование и надзор за зданиями, ремонтом и интерьером дошкольных учреждений, а также предоставление консультационных услуг по брендингу для дошкольных учреждений.
«Ёдзи но Широ», что в переводе с японского означает «Замок для детей», – имеет подразделение Hibino Sekkei Architecture, базирующейся в Канагаве, Япония. Компания была основана в 1972 году и в 1991 году открыла секцию, которая специализируется на дизайне детских пространств, что отражает быстро меняющуюся социальную ситуацию. К тому времени снижение рождаемости стало серьезной проблемой в Японии.
Если бы вы хотели попробовать отличные суши, вы бы не пошли в закусочную, верно? Вы бы пошли в суши-бар. И если вы хотите итальянскую кухню, вы не попросите шеф-повара суши вскипятить для вас макароны. Такое же мышление должно быть и для архитектуры и именно это предлагает использовать президент и главный архитектор “Hibino Sekkei” Таку Хибино.
То есть, если вы строите для детей, вам самим необходимо включить мышление ребёнка и создать такое пространство, в котором ребёнку будет, как минимум интересно находиться и продолжать фантазировать, расширяя границы взрослого восприятия.
“Учитывая, что все меньше детей продолжают ходить в детские сады, мы стали думать, чтосуществующая дошкольная архитектура, в которой классы одинаковых размеров и форм выстроены в ряд, была не совсем правильной. Вместо этой безликой архитектуры мы подумали, чтонужны места, которые искренне продуманы, спроектированы и построены для людей, которые там работают, людей по соседству и, конечно же, детей, которые всем этим пользуются. Полагаем, что мы создали приличное, можно сказать космическое количество работ в области дизайна для детей.За 24 года работы мы создали около 460 мест для детей по всей Японии. Пространства включают новую построенную архитектуру, переделанную архитектуру, интерьеры и тому подобное.В последнее время область нашего обслуживания расширяется по всему миру.“Таку ХибиноПрезидент и главный архитектор Hibino Sekkei
В портфолио у студии на сегодня множество реализованных проектов детских садов, к которым, определенно точно, нельзя остаться равнодушным. Здесь есть всё для того, чтобы ребёнок, попавший в созданную атмосферу, был свободен, находился в постоянном исследовании, творчестве и взаимодействии с окружающим пространством.

Предлагаем познакомиться немного подробнее с проектами студии Hibinosekkei + Youji no Shiro.
Obama Kodomoen, Нагасаки
Обама Кодомоен похож на интерактивный музей для детей. Здание было разработано таким образом, чтобы иметь визуальный контакт с близлежащим океаном.





















Просторные коридоры, которые окружают все помещения, дают возможность детям порезвиться в них, прежде чем садиться за занятия в художественной студии. Из кафе-ресторана открывается захватывающий вид на океан. Все эти атрибуты пространства подпитывают творчество у детей.
Doaishari Hoikuen
Сильные ветры, которые дуют через город Камису в префектуре Ибараки, и сказать к слову отлично служат для многих ветряных турбин, являются важным параметром при проектировании зданий, а при при строительстве детских сооружений этому уделяется особое внимание.

Архитекторы предложили структуру, в которой основное игровое пространство находится во дворе, защищенное со всех сторон зданиями.





Во дворе также находится сквозной кафетерий. Особый акцент был сделан на ванных комнатах, которые разрушали предвзятое представление о том, что ванные комнаты не могут быть увлекательным приключением. Глубокие окна создают места для отдыха между игровой площадкой и одним из коридоров, который соединяет классные комнаты с зонами для занятий и туалетными блоками.
Chuo Kodomoen
В городе Тахирара префектуры Хиросима наблюдается резкое снижение уровня населения и рождаемости. Но вместо того, чтобы игнорировать проблему, архитекторы предложили ее решение.
Созданная структура детского сада, открытая для общения, дает возможность погрузиться в домашнюю обстановку и благоприятствует непринужденному общению среди ее обитателей, которые стали всё больше и больше прибывать в этот детский оазис. К примеру, кафе было смоделировано в виде энгавы, это элемент традиционных японских домов, на подобие веранды.




Кафе открыто для публичного посещения и даже функционирует как бар в нерабочее время. Хотя это может быть немыслимо для нашего менталитета, но это отличная игра для сообщества детей и взрослых.
Dai-ichi Yochien
Что за детство без прыгания в лужи? Задавшись таким вопросы, архитекторы создали пространство и для такого развлечения, и оно заставляет детей хотеть изо всех сил в них прыгать.

Несомненно, игра на открытом воздухе, независимо от погоды, является необходимостью в детстве. Так что, если и есть место, где дети должны быть детьми, вдали от мира взрослых, которые вероятно стали бы бурчать и беспокоиться насчёт мокрой обуви, носков и одежды (не говоря уже о грязи :-)), – то с детьми всё совсем иначе. Для детей это рай! И он, как раз в дестком саду Dai-ichi Yochien – месте, где можно всё! Даже радостно прыгать в лужи.


Двор школы предназначен для сбора дождевой воды, так что после сильного ливня создается внушительная лужа, в которую с радостью ожидают дети. Хибино Секкей разработали двор таким образом, чтобы в сухие дни он мог функционировать как площадка для бадминтона или софтбола, а зимой его можно даже превратить в ледовый каток.


















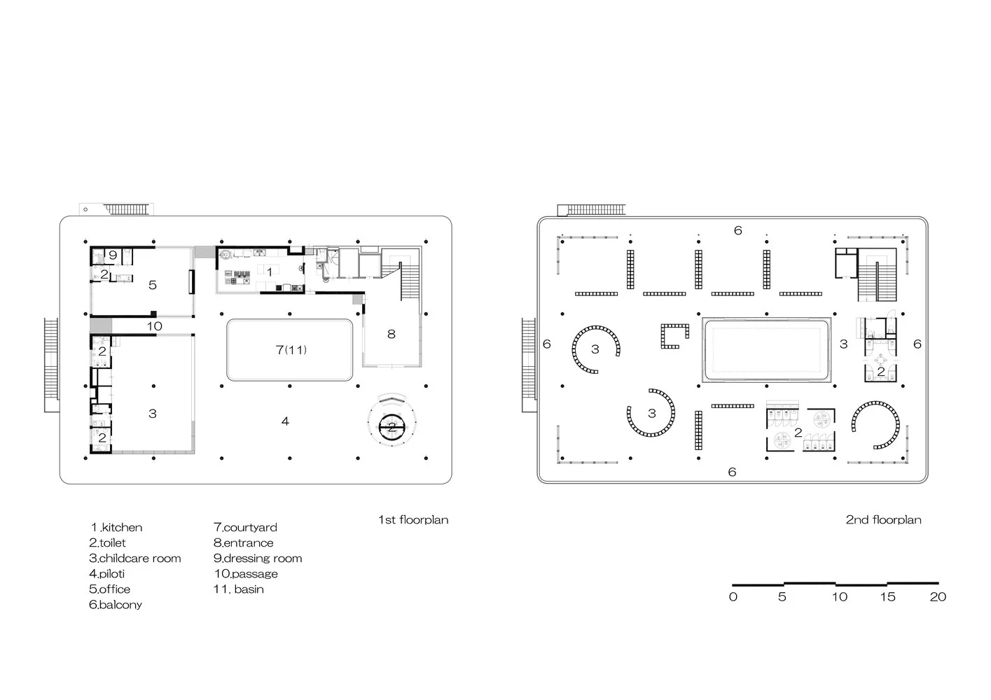
Atsugi Nozomi
Расположенный на участке в жилом районе города Ацуги, детский сад Atsugi Nozomi нуждался в обновлении после 42 летней службы, чтобы соответствовать действующим правилам безопасности от землетрясений, а также адаптироваться к новым методам обучения, да и просто стать более современным.
Вместо того, чтобы полностью разрушить существующее здание, архитекторы решили сохранить элементы своего предыдущего дизайна в новой двухэтажной структуре.

Нам было предложено изменить детский сад на тип здания следующего поколения, который подходит для наших дней, и мы приняли вдохновенно его в разработку. Поскольку в середине существующего здания был большой коридор шириной в пять метров, мы решили проектировать, организовав современное пространство таким образом, чтобы осталась память существующего здания в новом здании.
делятся в студии Хибино Секкей


Отверстия в опорных конструкциях лестниц в виде домиков обеспечивают укрытия, в то время как автономные домико-подобные конструкции обеспечивают пространство для чтения и игр.


Дома-короба со встроенными сидениями устанавливаются в стеклянные балюстрады на втором этаже, в которых есть окна с отверстиями на каждой стороне высокого коридора, которые стремятся к крыше здания.




В хижине есть небольшое окно, и оно создает новую связь с детьми, которые играют внизу. Стеклянные балюстрады на верхнем этаже предназначены для того, чтобы дети и учителя могли видеть друг друга и здание целиком.


Одноэтажное здание было преобразовано в двухэтажное и улучшены его визуальные функции, предоставляющие возможность детям и взрослым видеть друг друга.



В последние годы, когда физическая активность и креативность детей уменьшилась, мы ожидаем, что благодаря обновленному дизайну они смогут начать улучшать свои способности, организуя игры в помещении в разных местах.
архитекторы проекта


AKZ Nursery
Это детский сад расположен вдоль зеленой дороги для пешеходов в тихом жилом районе города.



Забор невысокий и просматриваемый. Дети и прохожие видят друг друга, и детям доставляет удовольствие играть на виду, и прохожим интересно наблюдать за детьми. Новый детский сад в жилом районе создает подлинные отношения с сообществом.

Также интересным решением выглядит терасса-столовая, которая настолько открыта, что дети и прохожие могут поприветствовать друг друга, что редкий случай в городских детских садах, но на самом деле идеальный.



Что касается окон скамей, которые установлены на каждой части, обращенной к дороге с зелеными насаждениями для пешеходов, то они выглядят как рамки для фотографий, в которых видны сцены с детьми и их активность. Это место, где дети и жители, которые проходят мимо детского сада, получают приятные эмоции, они машут друг другу руками, и это позволяет им непринужденно общаться.























В настоящее время Япония переживает критический спад населения и поразительно низкий уровень рождаемости. Можно было бы ожидать, что бизнес Хибино пострадает от такой тенденции. Но вместо этого он быстро развивается.
Хотелось бы ещё больше рассказать о проектах студии Hibinosekkei + Youji no Shiro и показать пространства, созданные этой студией для удобства детей и, что самое важное, для пробуждения их творчества, индивидуальности и непосредственности. Однако, оставим и вам возможность для исследований, но не обещаем, что в ближайшее время не сорвемся и не расскажем о других отличнейших проектах студии.
Кажется, Вам понравился этот материал, раз Вы его дочитали до конца. Пожалуйста, поделитесь с нами своими мыслями об этом и о том, как нам начать применять лучшие международные решения в нашей стране?

Комментарии (0)