
Инсайт
Жилищный проект ZuiderDuin в Гааге от Atelier PRO architects
Жилищный проект ZuiderDuin в Гааге был завершен в 2021 году. Проект расположен в районе между Международной школой Гааги (ISH) и…
Жилищный проект ZuiderDuin в Гааге был завершен в 2021 году. Проект расположен в районе между Международной школой Гааги (ISH) и Окенбургстраат на стороне Wijndaelerweg в Гааге.
Архитекторами проекта является нидерландское архбюро из Гааги Atelier PRO architects. Команда архитекторов ранее уже проектировала в данном районе The International School и была знакома с местностью, которая расположена между городскими и зелеными ландшафтами.
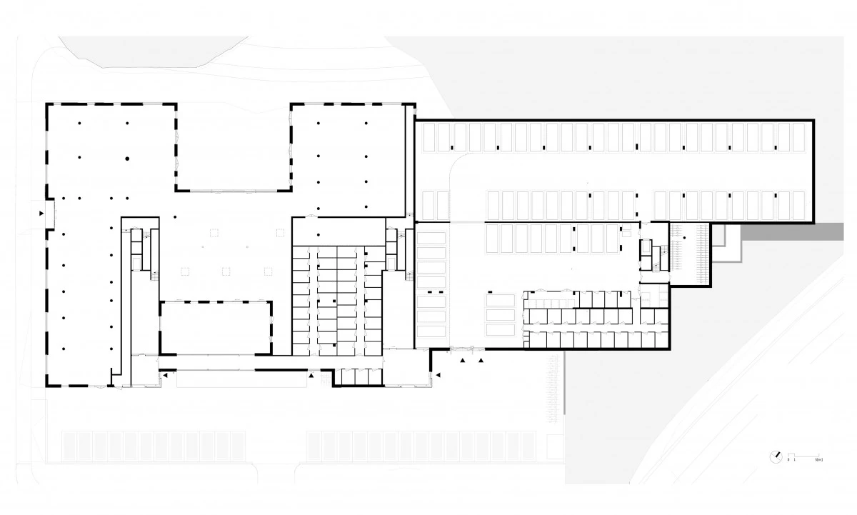
ZuiderDuinen включает 61 частную квартиру премиум-класса и квартиры для сдачи в аренду, размеры которых варьируется от 90 до 120 м², автостоянку на 63 места и цоколь первого этажа с детским садом и центром послешкольного ухода (1475 м²).
Для сохранения максимальной открытости на участке жилые дома сгруппированы в три блока. Жилой паркинг скрыт от глаз в искусственной дюне. Удобства, кладовая и главное лобби также включены в дюну.
К северу от участка зеленый склон соединяет два уровня автостоянки с зеленой дюной. Блок A и B, в котором находятся центры по уходу за детьми и после школы, стоит на городском постаменте, расположенном напротив Международной школы. Над дюной находится верхний уровень земли, который поддерживает блок C. Все три блока имеют свои собственные входы – A и B на первом этаже выходят на Wijndaelerweg и C на втором этаже на Ockenburgstraat. Все три входа обеспечивают внутренний доступ к автостоянке.
План соответствует богатому контексту ландшафта за счет использования существующих перепадов высот, чтобы скрыть парковку, и расширения зелени на крыши. Важной отправной точкой при проектировании было обеспечение всех квартир оптимальной ориентацией. Максимальный комфорт обеспечивают окна от пола до потолка, улучшающие качество света, пространства и вида. В кратком описании указаны просторные открытые пространства для квартир; есть три различных типа открытых пространств на выбор: балконы, сады на крыше и просторные террасы на крыше в специально разработанных вырезах на верхних этажах.
Исходя из вышеупомянутых отправных точек, Atelier PRO architects спроектировало здание, которое умело решает сложную задачу на этом уникальном месте. Это компактное, многогранное здание, сочетающее жизнь в городском и зеленом контексте, динамично реагирует на качество местности.













Комментарии (0)