
ЛокацияSilves, Portugal
Год2023
Площадь44.320 sqm
СтатусЗавершен
LocationSilves, Portugal
SectorResidential / Sustainability
Year2023
Area44.320 sqm
ClientVanguard Properties
StageBuilt
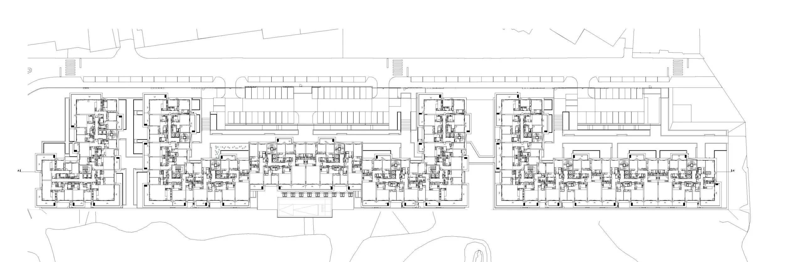
С его привилегированным расположением, этот новый жилой комплекс состоит из 256 квартир, распределенных по шести объемам. Характеризуется высокой степенью горизонтальности и акцентирован большими застекленными балконами, которые были спроектированы в стилизованных и элегантных формах,
целью было передать идею легкости и гармонии. Была принята треугольная геометрия, чтобы улучшить контроль солнечного воздействия в комплексе и подчеркнуть игры теней и света и объемов, чтобы таким образом обогатить общий образ комплекса.
Проект подготовили
Этот проект является междисциплинарной работой в области архитектуры и дизайна. Опубликовано 15 марта 2026 г..
Галерея проекта











Другие проекты Автора
Посмотрите последние работы Saraiva+Associados

3795
Arcoverde

4809
ALLO – Alcântara Lisbon Offices

2501
Judiciary Police Headquarters

2408
Beatriz Ângelo Hospital

3062
Dafundo

1884
Casal Ribeiro

916
Infinity Tower

1039
Valrio

927
The Editory Riverside Santa Apolónia Hotel

771
Park International School

813
The Emerald House

840
