
ЛокацияLisbon, Portugal
Год2020
Площадь8.142 sqm
СтатусЗавершен
LocationLisbon, Portugal
SectorHospitality
Year2020
Area8.142 sqm
ClientHL PHDL, Cafe
StageBuilt
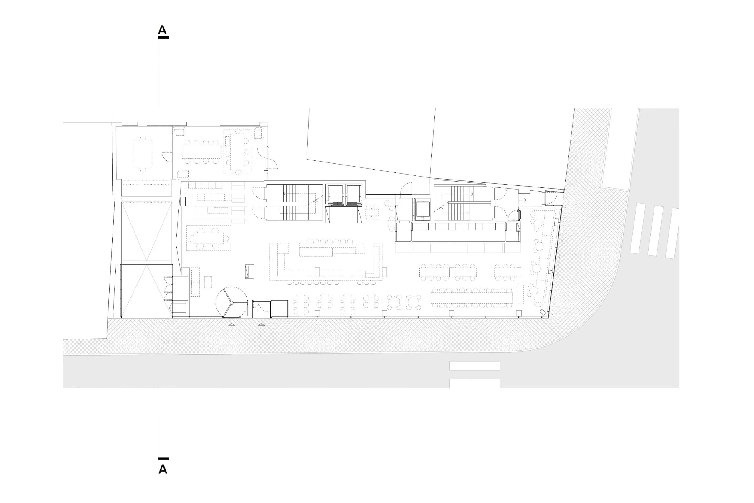
Это трехзвездочный отель, расположенный на Avenida Duque de Loulé, Лиссабон, чьи внутренние пространства отражают полностью урбанистическую и мультикультурную концепцию, которая сочетает Фадо с уличным искусством, в соответствии с Лиссабоном, гордым своими корнями, уникальной характеристикой культурной и богемной жизни. Тщательно подобранные материалы, наряду с выбранной цветовой палитрой и дизайном каждого элемента, придают особенность каждому из различных пространств и одновременно трансформируют их в уникальное, вне времени, повседневное, шикарное и космополитичное целое.
Проект подготовили
Этот проект является междисциплинарной работой в области архитектуры и дизайна. Опубликовано 15 марта 2026 г..
Галерея проекта















Другие проекты Автора
Посмотрите последние работы Saraiva+Associados

6346
Arcoverde

5517
ALLO – Alcântara Lisbon Offices

3684
Judiciary Police Headquarters

3485
Beatriz Ângelo Hospital

4734
Dafundo

3753
Bayline

4354
Casal Ribeiro

916
Infinity Tower

1039
Valrio

927
The Editory Riverside Santa Apolónia Hotel

771
Park International School

813
