
ЛокацияLisbon, Portugal
Год2021
Площадь4.050 sqm
СтатусЗавершен
LocationLisbon, Portugal
SectorWorkspaces
Year2021
Area4.050 sqm
ClientPromoqualis
StageBuilt
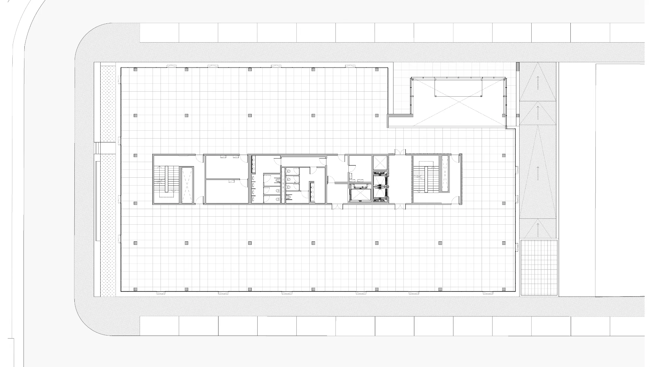
Расположенное в португальской столице, здание SGS является продольным офисным и лабораторным зданием, которое формально связано с окружающей средой. Офисы и лаборатории распределены по трем этажам над землей, а интерьеры предлагают различные практические и структурированные решения, которые могут обеспечить персонализированные атмосферы в различных пространствах. С этой целью дизайн отражает приверженность инновациям и оптимизации условий труда с помощью интеллектуальной модуляции.
Проект подготовили
Этот проект является междисциплинарной работой в области архитектуры и дизайна. Опубликовано 15 марта 2026 г..
Галерея проекта







Другие проекты Автора
Посмотрите последние работы Saraiva+Associados

6346
Arcoverde

5517
ALLO – Alcântara Lisbon Offices

3684
Judiciary Police Headquarters

3485
Beatriz Ângelo Hospital

4467
Dafundo

3753
Bayline

4354
Casal Ribeiro

916
Infinity Tower

1039
Valrio

927
The Editory Riverside Santa Apolónia Hotel

771
Park International School

813
